Arquitecto

Carlos Lamela | Estudio Lamela Arquitectos

Lugar

Madrid, España

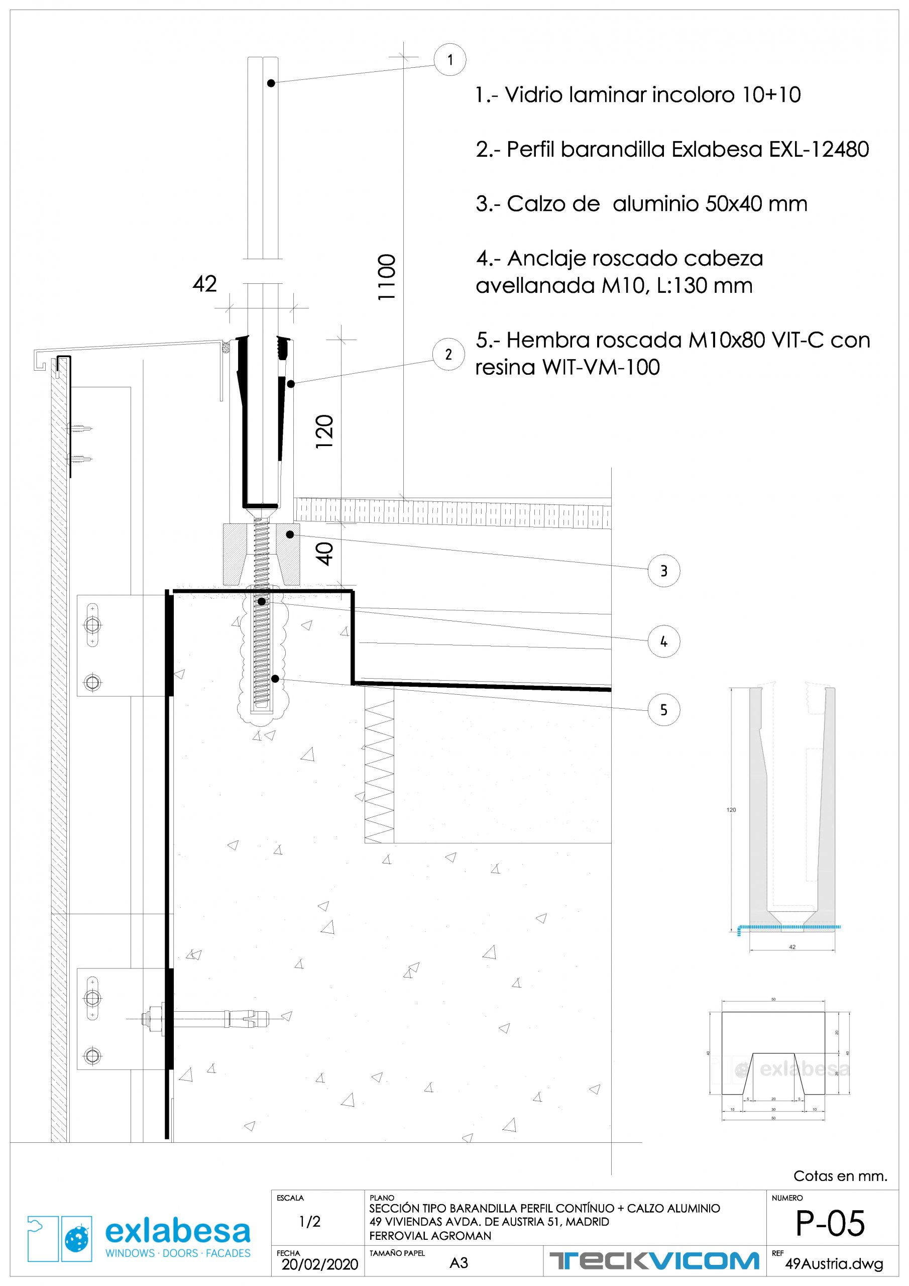
Producto

Conector Q-railing 0749 con vidrio laminar templado 8+8.4 y perfil EXL-12480 Exlabesa con vidrio laminar 10+10.2