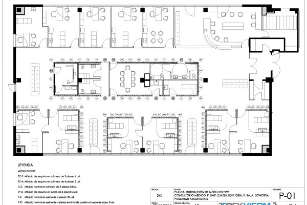
Arquitecto

Felipe Pérez Aurtenetxe y Elena Usabiaga Usandizaga
| Estudio de Arquitectura Pauzarq

Lugar

Donosti-San Sebastián, Guipúzcoa, España

Producto

U-glas Pilkington Profilit K22/60/7 OW Opal