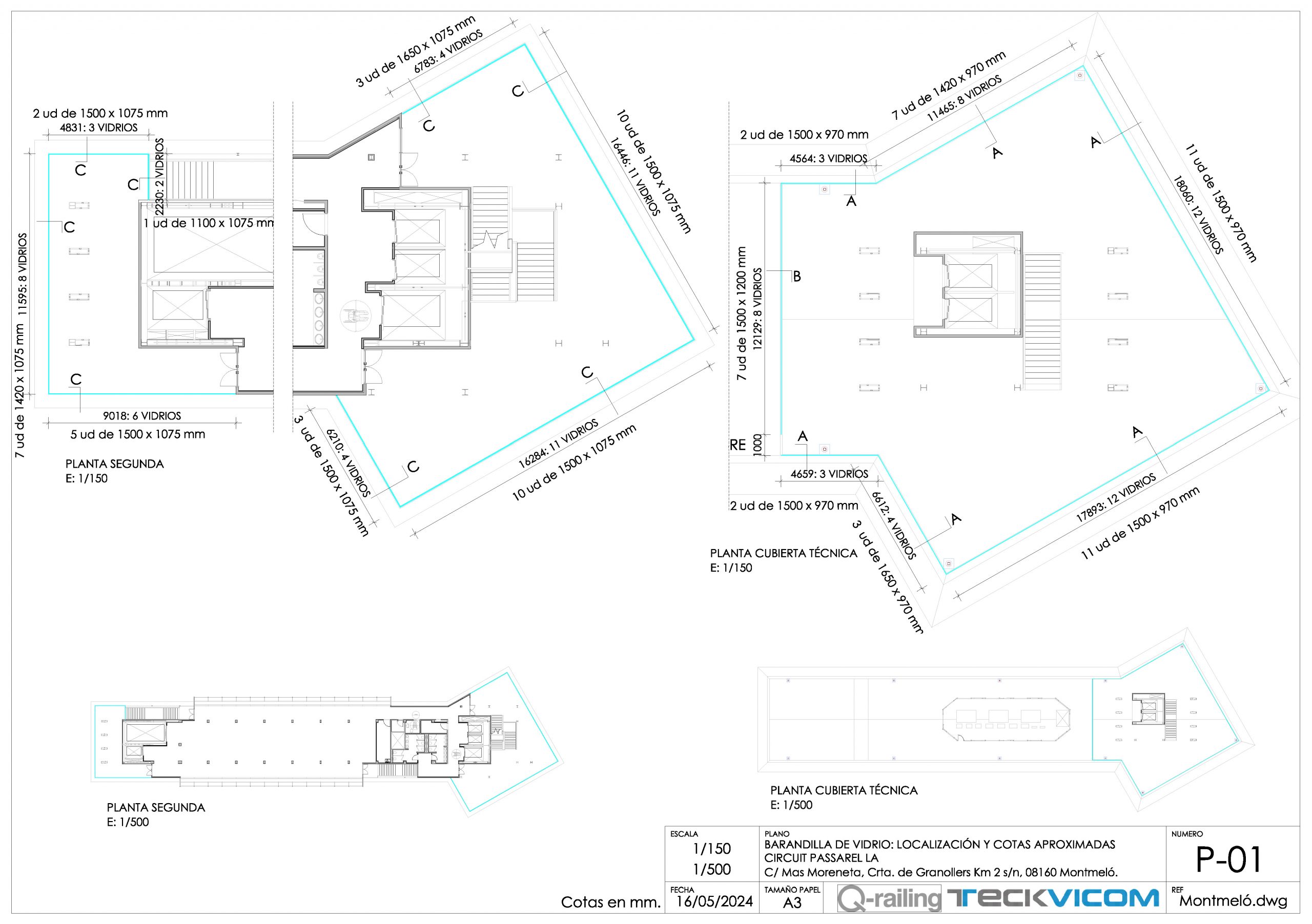
Arquitecto

Torrella, Ingeniería y Arquitectura

Lugar

Montmeló, Barcelona, España

Producto

Barandilla Q-railing perfil Easy Glass Smart con vidrio laminar templado 8+8.4